三门峡天鹅湖旅游度假区部分道路界桩 制作安装项目自行采购的公告
发布时间:2019-09-02华人策略研究论坛-华人策略综合讨论大厅-华人策略社区官方网站|信用菠菜额度担保网|冠军策论策略cmp8|博壹把论坛白菜|点击:6635
三门峡天鹅湖旅游度假区部分道路界桩
制作安装项目自行采购的公告
按照三门峡市委、市政府关于创建省级三门峡天鹅湖旅游度假区的部署安排,现对三门峡天鹅湖旅游度假区部分道路界桩项目进行自行采购。根据有关规定,该项目符合自行采购项目条件,欢迎符合相关条件的供应商参加投标。现将自行采购文件公告如下:
一、招标内容项目简要说明
(一)项目名称:三门峡天鹅湖旅游度假区部分道路界桩制作安装项目
(二)项目内容:三门峡天鹅湖旅游度假区涉及国道、省道及城市道路10个位置,具体位置以业主意见为准。
(三)招标编号:smxdjq2019-005
(四)项目地点:三门峡天鹅湖旅游度假区范围内
(五)资金来源:自有资金
(六)预算资金:19.8万元(含设计费约1万元)
(七)工期:10日历天
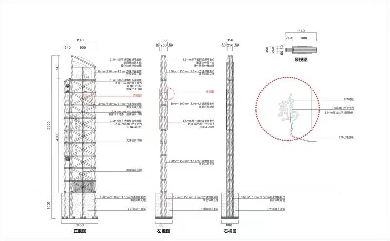
(八)制作规格要求:规格5000mm*1140mm;工艺:1.5mm不锈钢折弯制作,表面汽车烤漆,整体防紫外线处理;文字1.5mm不锈钢折弯制作,围边20mm,图文丝网印刷。
(九)基础要求:C25混凝土浇筑,150mm*150mm*4.5mm方通焊接制作表面环氧处理(其余见图纸)。
二、供应商资格要求
(一)符合《中华人民共和国政府采购法》第二十二条的规定。
(二)报价人必须是在中华人民共和国境内注册的独立法人,持有有效的营业执照(含税务登记证、组织机构代码证)。
(三)具有丰富的三门峡旅游标识制作经验(以合同为依据)。
三、投标报名
(一)凡有意报名者,请于2019年 9月 5 日17:00 前到 三门峡市联通大楼12层度假区管委会综合组 报名。报名联系电话0398- 2825077。
(二)报名时需提交的资料如下:
1.投标人法定代表人身份证或法人授权委托书及被授权人身份证;
2.营业执照复印件、相关合同、无不良诚信记录;
3.需携带以上证件原件验审,留存复印件壹套(复印件按顺序装订成册并逐页加盖企业公章,法人授权委托书留件)。
4.预交投标保证金1万元,中标后转为履约保证金。
四、发布公告的媒介
本次招标公告在 三门峡华人策略研究论坛及三门峡天鹅湖旅游度假区网站发布。
五、投标文件的递交
(一)投标文件递交的截止时间、地点详见招标文件;
(二)逾期送达的或者未送达指定地点的招标文件,招标人不予受理。
六、联系方式
招标人:三门峡市天鹅湖度假区管委会综合组
联系人: 董永娴 电话: 0398-2825077
七、投标人须知
7.1 | 签字或盖章要求 | 投标文件封面、投标函、附录及投标文件格式要求的均应加盖投标人公章并经法定代表人(或其委托代理人)盖章或签字。 |
7.2 | 投标文件份数 | 正本壹份,副本叁份; |
7.3 | 装订要求 | 必须保证投标文件装订牢固。 投标文件的正本与副本应分别装订成册,封面标明正本或副本。投标文件应编制目录。 |
7.4 | 密封要求 | 投标文件的正本、副本应密封在一个包内,加贴封条, 并在封套的封口处加盖投标人单位公章 |
7.5 | 封套上写明 | 项目名称:三门峡天鹅湖旅游度假区部分道路界桩项目 招标编号:smxdjq2019-005 投标人名称: 在2019年9月6日10时30分(开标时间)前不能启封。 投标人、法定代表人名称及印鉴 投标文件包封开口处以密封条密封,加盖投标单位公章。 |
7.6 | 递交投标文件地点 | 三门峡市联通大楼12层度假区管委会综合组 |
7.7 | 是否退还投标文件 | 否 |
7.8 | 开标时间和地点 | 开标时间: 2019 年 9 月 6 日10:30 分 开标地点: 三门峡市联通大楼17层会议室 |
7.9 | 开标注意事项 | 开标时各投标人的法定代表人或委托代理人(授权委托书)持身份证明原件和本人身份证原件参加开标会议。各投标人须在投标截止时间前提交纸质版投标文件并签到成功。未按上述要求到场或逾期未到者视为自动弃标。 |
7.10 | 开标程序 | (1)密封情况检查:由投标人和监督人员检查其投标文件的密封情况。未按国家有关标准密封的投标文件应由招标人退还给投标人,不予接受。(2)开标顺序:按送达投标文件顺序的逆顺序开标。 |
7.11 | 评标办法 | 同等条件,低价中标;非同等条件,合理低价中标。 |
评标委员会的组建 | 华人策略研究论坛、市文化广电和旅游局、天鹅湖旅游度假区综合组各1人, | |
7.12 | 是否授权评标委员会确定中标人 | 否,推荐的中标候选人数:3名 |
7.13 | 招标控制价 | 本项目招标控制价为: 198000 元 凡投标人投标报价超出 “招标控制价”(不含等于“招标控制价”)的,该投标人的投标文件应作无效标处理。 |
7.14 | 投标报价组成 | 报价汇总表、报价一览表等 |
7.15 | 价款支付方式 | 安装验收合格后付款 |
7.16 | 工程保质期 | 10年 |
八、合同授予
(一)定标
招标人依据评标小组推荐的中标候选人确定中标人,评标委员会推荐中标候选人的人数见投标人须知。
(二)中标通知
招标人将中标结果通知中标的投标人。
(三)签订合同
招标人和中标人应当自中标通知书发出之日起5天内,根据招标文件和中标人的投标文件订立书面合同。中标人无正当理由拒签合同的,招标人取消其中标资格。
九、项目总体要求
合同签订后,10日历天将度假区竖立在制定位置的界桩按照制作工艺及要求竖立在指定位置。
三门峡天鹅湖旅游度假区管委会综合组
三门峡市文化旅游交通发展集团有限公司
2019年9月2日
附件:1.报价汇总表
2.天鹅湖旅游度假区界碑标识报价清单
附件1
报价汇总表
项目名称: | |
报 价 | |
价格 | (小写)¥ (大写)人民币 佰 拾 万 仟 佰 拾 元整
|
工期 | |
质保期 | |
投标单位全称(盖章): 全权代表(签字):
注:投标报价总计包括本项目的所有交付使用前的全部费用、合理利润及税金;
附件2
天鹅湖旅游度假区界碑标识报价清单
序 号 | 项目内容 | 规格与工艺 | 数量 | 单位 | 人民币(元) | 备 注 | |
单价 | 合 计 | ||||||
01 | 天鹅湖旅游度假区 | 规格:5000mm*1140mm | 10 | 个 | |||
![]() | 工艺: 1.5mm不锈钢折弯制作,表面汽车烤漆,整体防紫外线处理;文字15mm不锈钢折弯制作,围边20mm,图文丝网印刷。 | 地上部分 | |||||
预埋部分 | |||||||
总计: | |||||||
注:此报价包含制作运输安装及税费、设计费。 | |||||||





